8 Pines, Aroeira
"Abstração com refinamento luxuoso" são as palavras escolhidas pelo arquiteto Bruno Câmara, autor do projeto 8 Pines Aroeira, desenvolvido com a sua equipa para um lote localizado na Avenida António Pedro, na Aroeira — uma via secundária perpendicular à Avenida do Mar, a principal avenida com acesso direto à praia da Costa da Caparica.
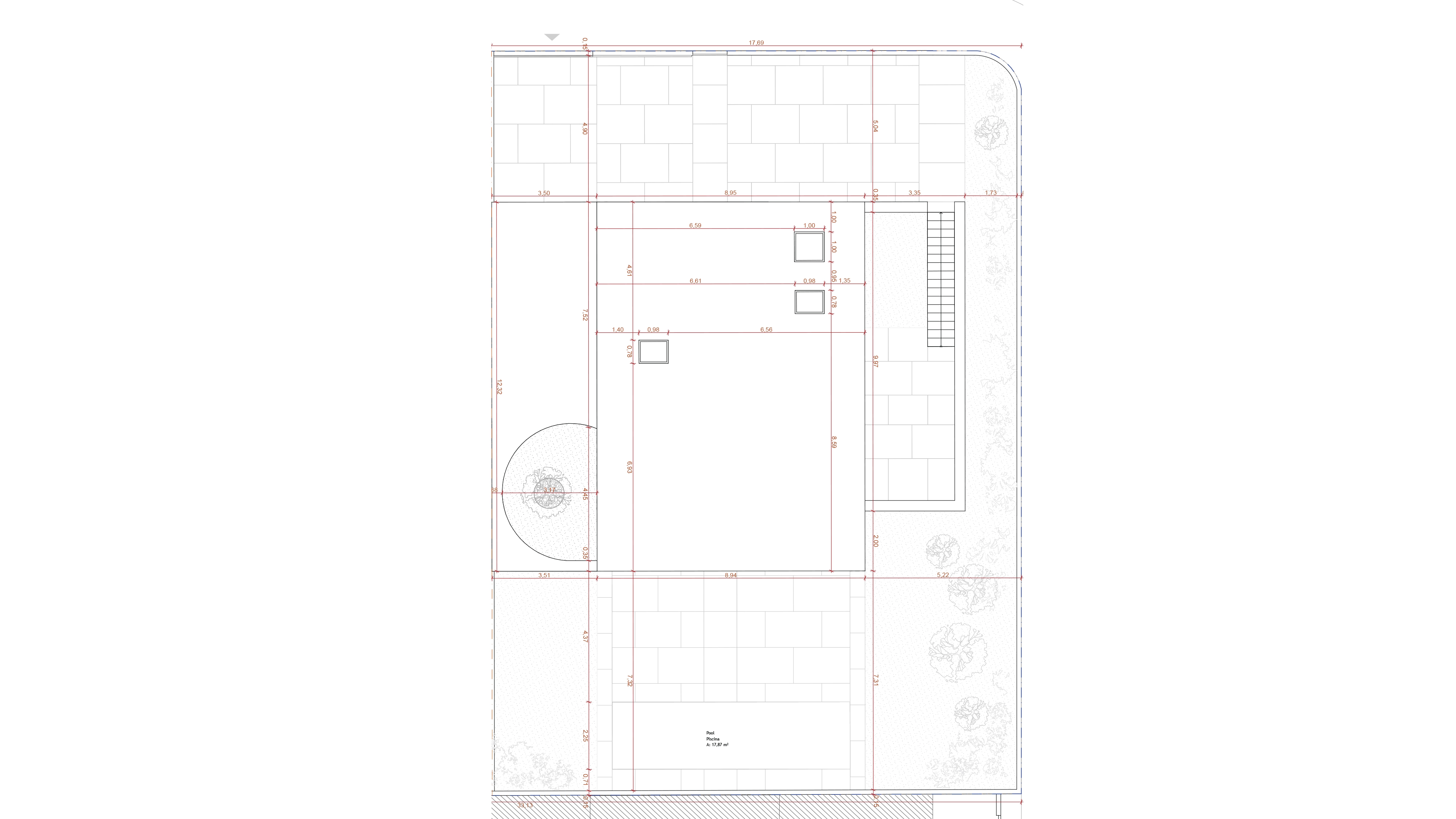
O projeto compreende oito moradias unifamiliares independentes com um design exclusivo que garante total privacidade entre as suas áreas exteriores, realçando vistas contemplativas sobre os seus pátios interiores privados e o pátio central com piscina. Isto permite que cada villa desfrute de um ambiente exterior íntimo com total privacidade.
As villas apresentam um design refinado, com arquitetura que enfatiza solidez, beleza, funcionalidade, luz natural e a materialidade dos materiais nobres selecionados, incluindo pedra natural, vidro e madeira. O interior desdobra-se em generosas áreas sociais no piso térreo, conceptualmente ligadas aos pátios e jardins exteriores, enquanto o piso superior acomoda uma área privada com três quartos, cada um com varandas e pátios privados contemplativos.
O projeto Eight Pines estabelece uma forma cosmopolita de viver na Aroeira, marcada por um refinamento luxuoso e íntimo, representando um verdadeiro paradigma de exclusividade.
Encontre Casas Onde Quer Viver - Modelo A
O Modelo A, composto por seis unidades, apresenta um volume geometricamente refinado derivado de um cubo, definido por linhas firmes e uma presença arquitetónica de maior solidez, austeridade e carácter escultórico. A sua forma quadrada reforça a robustez do conjunto, conferindo-lhe uma expressão contemporânea em que a massa construída assume o centro do palco, complementada por mármore natural que marca a entrada e interage com os pátios e subtis variações de luz que suavizam a sua força formal. É uma residência que afirma a materialidade e a pureza do design, articulando o rigor geométrico com a serenidade dos espaços exteriores circundantes. Configurado como uma tipologia de quatro quartos, a casa é concebida com uma lógica espacial rigorosa em que funcionalidade, conforto e a relação com o exterior se integram numa solução arquitetónica contemporânea. O layout está organizado em torno de um hall de entrada de dupla altura que estrutura a circulação e realça a permeabilidade visual. O piso térreo acomoda uma generosa área social em plano aberto — sala, jantar e cozinha — conectada de forma contínua aos pátios interiores e ao exterior com piscina, garantindo continuidade espacial e uma relação imediata com o quotidiano ao ar livre. Um espaço híbrido flexível (quarto ou escritório), uma casa de banho completa e acessos pedonais e viários independentes reforçam a autonomia e funcionalidade da casa. O piso superior acolhe a área privada, composta por três quartos com acesso a varandas e pátios, garantindo luz natural e ventilação, incluindo um quarto principal com casa de banho privada e closet. A circulação segue a curvatura da fachada principal, oferecendo uma leitura visual contínua sobre o hall de entrada de dupla altura e destacando a luz natural que entra através de grandes janelas, claraboias e o pátio aberto. Na versão do Modelo A com cave, o nível inferior integra áreas técnicas e de arrumação, sem espaços habitáveis, mantendo a organização funcional da residência. Todo o projeto foi desenvolvido de acordo com princípios de eficiência, conforto térmico e conformidade com padrões de habitabilidade, garantindo uma experiência residencial harmoniosa, fluida e integrada. A materialidade do Modelo A baseia-se numa seleção meticulosa de materiais nobres que reforçam a sua identidade contemporânea e sensação de conforto. A madeira maciça proporciona textura e permanência ao ambiente interior, enquanto o mármore de Estremoz, aplicado em cozinhas e casas de banho, introduz elegância e luminosidade natural. Cozinhas e guarda-roupas em madeira envernizada garantem uma precisão sofisticada nos detalhes e uma continuidade visual coerente em toda a casa. Grandes janelas exteriores realçam a relação interior-exterior e maximizam a luz do dia, afirmando a transparência como elemento composicional central. Cada detalhe é projetado pela equipa de arquitetura — desde a iluminação indireta até aos detalhes de execução material — garantindo uma identidade unificada e totalmente refinada. A construção adota um sistema inovador e ecológico alinhado com os princípios da casa passiva, garantindo elevados padrões de eficiência energética, conforto térmico e sustentabilidade. O Modelo A pode também ser expandido com um piso extra opcional, projetado para clientes que procuram flexibilidade adicional de programa ou a possibilidade de integrar um apartamento independente dentro da residência principal. Este nível suplementar beneficia da sua própria entrada exterior, garantindo total privacidade, e está organizado em torno de um pátio privado que atua como poço de luz natural, iluminando todo o interior. O layout compreende uma área social com sala e cozinha em plano aberto, mantendo o rigor material e a linguagem arquitetónica do modelo, complementada por um generoso quarto com closet e casa de banho privada. Esta solução adiciona versatilidade e sofisticação ao Modelo A, permitindo o alojamento de membros da família, a criação de um espaço de trabalho autónomo, ou receber hóspedes com total independência, preservando a coerência volumétrica e a elegância arquitetónica do projeto.
CARACTERÍSTICAS
PARCEIROS E FORNECEDORES
Encontre Casas Onde Quer Viver - Modelo B
O Modelo B, composto por duas unidades exclusivas localizadas na área mais isolada do desenvolvimento, é definido por um volume longitudinal em forma de paralelepípedo refinado, concebido em estreita relação com a morfologia do lote. A sua forma alongada estabelece uma presença arquitetónica subtil, elegante e tranquila, realçando tanto a privacidade como o enquadramento natural do local. Linhas horizontais estendem-se ao longo da fachada, gerando uma leitura contínua e equilibrada que contrasta com a verticalidade das grandes aberturas envidraçadas. Esta geometria alongada reforça a serenidade arquitetónica do conjunto, permitindo que a residência se integre harmoniosamente no final da avenida principal, num diálogo discreto com os pátios e a luz natural que permeia todo o edifício. O Modelo B apresenta uma tipologia de quatro quartos organizada segundo uma lógica funcional refinada, em que a distribuição espacial segue o desenvolvimento longitudinal da casa. O piso térreo incorpora uma generosa área social em plano aberto, articulando espaços de sala, jantar e cozinha numa sequência contínua orientada para os pátios interiores e a área exterior com piscina, garantindo uma ligação fluida e consistente com o exterior. Um espaço flexível — escritório ou quarto — com casa de banho completa, bem como acessos pedonais e viários independentes, reforçam a autonomia e o conforto diário da residência. O piso superior acomoda a área privada, composta por três quartos com varandas e pátios contemplativos, garantindo luz natural e ventilação. O quarto principal beneficia de uma casa de banho privada e closet, enquanto a circulação segue a geometria retilínea do edifício, iluminada por claraboias e aberturas estrategicamente posicionadas. A materialidade do Modelo B mantém a mesma coerência qualitativa de todo o desenvolvimento: madeira maciça, mármore de Estremoz em cozinhas e casas de banho, cozinhas e guarda-roupas em madeira envernizada, e vãos envidraçados generosos que realçam a perceção espacial e a entrada de luz natural. Cada detalhe é cuidadosamente projetado pela equipa de arquitetura, desde a iluminação indireta até ao refinamento construtivo de cada material, garantindo uma identidade unificada, precisa e meticulosamente trabalhada. Tal como no Modelo A, o Modelo B adota um sistema de construção inovador e ecológico alinhado com os princípios da casa passiva, garantindo elevados padrões de eficiência energética, conforto térmico e sustentabilidade. O Modelo B pode também ser complementado com um piso extra opcional, projetado para clientes que procuram maior autonomia programática ou a possibilidade de integrar um apartamento independente dentro da residência. Este nível adicional apresenta a sua própria entrada exterior privada, garantindo total privacidade, e está organizado em torno de um pátio privado que atua como fonte de luz natural, iluminando continuamente o interior. O programa inclui uma área social composta por sala e cozinha em plano aberto, projetada com a mesma precisão material do resto da casa, bem como um generoso quarto com closet e casa de banho privada. Esta solução adiciona versatilidade ao modelo, permitindo o alojamento de membros da família, a criação de um espaço de trabalho isolado, ou receber hóspedes com total independência, mantendo a coerência arquitetónica e a elegância do projeto geral.
CARACTERÍSTICAS
PARCEIROS E FORNECEDORES
Villas Exclusivas à venda em Aroeira, Lisboa
| REFERÊNCIA ↓ | TIPOLOGIA ↓ | A CAMINHAR ↓ | ÁREA BRUTA PRIVADA ↓ | ÁREA VARANDA ↓ | TERRENO ↓ | ESTACIONAMENTO ↓ | PREÇO ↓ | PLANTAS | SOLICITAR INFORMAÇÕES |
|---|---|---|---|---|---|---|---|---|---|
| Modelo A - Piso Térreo | Villa A | 1 | 245.50 M2 | 18.30 M2 | 95.20 M2 | 1 | VENDIDO | SOLICITAR INFORMAÇÕES | |
| Modelo B - Piso Térreo | Villa B | 1 | 268.75 M2 | 22.15 M2 | 110.40 M2 | 1 | VENDIDO | SOLICITAR INFORMAÇÕES |
























































